
CRV--V锥流量计适合安装在上、下游直管段不足的场合。具有精度高、重复性好,可测量范围宽,安装简单方便、维护费用低等一系列优点,流体的条件可从高低温到临界状态,工作温度高达 700℃,压力可到 40MPa,雷诺数为 500 万,雷诺数为 8000 甚至低。所产生的满刻度差压信号,从小于0.1KPa 到几十 KPa。
一、主要特性
CRV--V锥流量计适合安装在上、下游直管段不足的场合。具有精度高、重复性好,可测量范围宽,安装简单方便、维护费用低等一系列优点,流体的条件可从高低温到临界状态,工作温度高达 700℃,压力可到 40MPa,雷诺数为 500 万,雷诺数为 8000 甚至低。所产生的满刻度差压信号,从小于0.1KPa 到几十 KPa。可在宽的流量范围内测量气体、液体和蒸汽的流量而不受流体物理性质的影响可在系统的每个地方安装——即使安装空间比较狭小也可正确测量可就地或异地显示瞬时量和累积量精度可达测量值的±0.5%测量范围宽,测量量程比可达10:1直管段要求低,多数情况前3D,后1D能够满足测量要求无活动部件,无磨损,因而不需要维修或换,后期维护量小可直接测量介质的温度和压力,直接算出蒸汽、气体的质量流量和标况流量阻流(传感)元件和变送器可以通用,可自由互换,节省备品备件费用可选智能型,带HART通讯,进行远程组态。

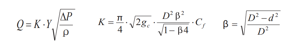
Q:体积流量
K:无量纲常数,因流量计不同而不同
Y:气体压缩系数,对非压缩流体Y=1
gc:重力加速度ρ:流体密度
D:管道内径K:无量纲常数,因流量计 不同而不同
d:锥体外径ΔP=P1-P2,一次阻流件上下游之间的压力差
β:直径比,无量纲常数Cf:标定常数系数,与文丘里公式相同。
四、主要优势1、量程比宽V锥流量计的量程较其它类型的差压流量计大得多,正常情况下为10:1,若需要可以加大。在雷诺数高于 8000 时,输出信号为线性,若低于 8000 也可测量,但需根据流体状况对输出信号根据曲线进行修正。
2、 直管段要求低由于V 锥流量计可均匀流体分布曲线,因此同其它类型的差压流量计相比,对上、下游直管段的要求小,建议安装时在上游留 0-3D 的直管段,在下游留 0-1D 直管段,当用户的管道尺寸大、管道价格高或直管段不够的情况下,环锥流量计将是合适的选择。
3、压力损失低由于没有突出的档板,因此环锥流量计的压力损失比孔板低。另外由于信号稳定,所以同其它差压式仪表相比,环锥流量计的满量程差压值低,满量程流量的差压值可为 4~5Kpa 或小,这也使环锥流量计的压力损失可以限度地减小。
4、无滞留死区由于锥体的这种“吹扫式”设计不存在死区,因此在锥体上不会堆积流体的碎片、粘渣或杂质,这种结构比较适合测量类似渣油、高炉煤气、焦炉煤气等脏污介质。
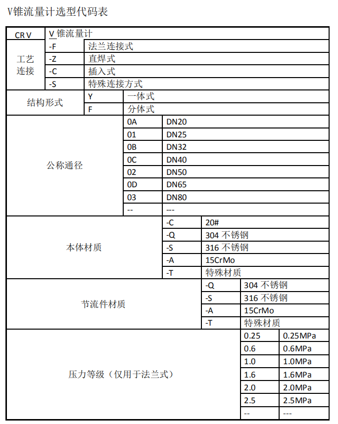
五、选型表
例:CR V-F Y 04 -C -Q 1.6 : V锥流量计,一体式法兰连接,公称通径为DN100,本体材质为20#,节流件材质为304,压力等级 1.6MPa。

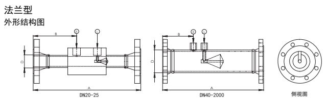
六、结构尺寸